¡Ø¥ë¥Ó¡¼¥ì¥Ã¥É¤Î¥ª¥·¥ã¥ì¤ÊÈâ
¡¡¡¡ÁÇŨ¤Ê¥µ¥ó¥ë¡¼¥à¤Î¤¢¤ë¤ª²È¡Ù
![]() |
|
¤ª»Ü¼çÍͤȤνвñ¤¤
¤ª²Èõ¤·Åö½é¤ÏÊ̤Υ¨¥ê¥¢¤Çõ¤µ¤ì¤Æ¤¤¤Þ¤·¤¿¤¬¡¢YÍͤÎÍýÁÛ¤ÎÅÚÃϤ¬¤Ê¤«¤Ê¤«¸«¤Ä¤«¤é¤º¥¨¥ê¥¢¤ò¹¤²¤é¤ì¤Þ¤·¤¿¡£ ¤½¤³¤ÇÅö¼Ò¤Î̧Ì̻ԤÎʬ¾ùÃϤò¥Í¥Ã¥È¤Ç¸«¤Ä¤±¤é¤ì¤Æ¸½ÃϤؤ´Íè¾ì¤¤¤¿¤À¤¤Þ¤·¤¿¡£¼ÂºÝ¤Ë¸½¾ì¤ò¸«¤Æ¼þÊÕ¤ÎÊ·°Ïµ¤¤Ê¤Éµ¤¤ËÆþ¤Ã¤Æ¤¤¤¿¤À¤¡¢¼¡¤ÎÆü¤Ë¡Ö¤³¤³¤Ë¤·¤Þ¤¹¡ª¡×¤È¤ªÅÅÏäò¤¤¤¿¤À¤¡¢YÍͤÈMJ HOUSE¤Î¤ª²È¤¤ê¤¬¥¹¥¿¡¼¥È¤·¤Þ¤·¤¿¡£
º£²ó¡¢YÍͤ¬·è¤á¤é¤ì¤¿ÅÚÃϤÏË̦ƻϩÉý4m¡¢À¾Â¦Æ»Ï©Éý4m¤ÎËÌÀ¾³ÑÃϤǤ¹¡£
¤½¤Î¤¿¤á¡¢ÍÛÅö¤¿¤ê¤¬Îɤ¯É÷Ä̤·¤â¤è¤¤Î©ÃϾò·ï¤Ç¤¹¡£
1³¬¤ÎÇÛÃÖ
Âç¤Þ¤«¤Ê1³¬¤ÎÇÛÃÖ¤ò¤´¾Ò²ð¤¤¤¿¤·¤Þ¤¹¡£ÂǤÁ¹ç¤ï¤»Åö½é¤Ë»Å»öÉô²°¤È¼¼Æâ´³¤·¥¹¥Ú¡¼¥¹¤Î¤´´õ˾¤ò¤¤¤¿¤À¤¤Þ¤·¤¿¡£»Å»öÉô²°¤ÏLDK¤Î²È²¤ÎÍͻҤ¬³Îǧ¤·¤ä¤¹¤¯²È²¤«¤é¤â¸«¤¨¤ë¤³¤È¡¢¤½¤·¤ÆÍèµÒ¤Ëµ¤ÉÕ¤¯¤è¤¦¤Ë¤·¤¿¤¤¡¢¤È¤ª»Ç¤¤¤·¡¢1³¬¤ÎLDK¤È¸¼´Ø¤Î¤É¤Á¤é¤Ë¤â¶á¤¤¾ì½ê¤ËÇÛÃÖ¤·¤Þ¤·¤¿¡£
¤â¤¦°ì¤Ä¤Î¤´´õ˾¤Ç¤¢¤ë¼¼Æâ´³¤·¥¹¥Ú¡¼¥¹¤ÏÍÛÅö¤¿¤ê¤ÈÄí¤Ø¤Î½ÐÆþ¤ê¤ò¹Íθ¤·¡¢ÆîÅ즤ËÇÛÃÖ¤·¤Þ¤·¤¿¡£
¤³¤Î2¤Ä¤Î¥¹¥Ú¡¼¥¹¤ò1³¬¤ËÇÛÃÖ¤µ¤»¡¢¤µ¤é¤ËƱ¤¸1³¬¤ÎLDK¤â¤æ¤Ã¤¿¤ê¤È¤·¤¿¥¹¥Ú¡¼¥¹¤ò³ÎÊݤ¹¤ë¤¿¤á¡¢¤ªÉ÷Ϥ¤ÈÀöÌ̼¼¤Î¿å²ö¤ê¤ò2³¬¤ØÇÛÃÖ¤¹¤ë¤³¤È¤ÇLDK¥¹¥Ú¡¼¥¹¤ò³ÎÊݤ·¤Þ¤·¤¿¡£
¡Ê²¼µ¥¤¥á¡¼¥¸¿Þ¤ò¤´»²¾È²¼¤µ¤¤¡Ë

¸¼´Ø¤Î¼ýǼ·×²è
Æþ¤Ã¤Æ¤¹¤°º¸Â¦¤ÎÊÉ(²£Éý1.8m׹⤵ŷ°æ¤Þ¤Ç)¤Ë²Äư¼°¤Îê¤ò6ÃÊÀßÃÖ¡£¤½¤·¤ÆÎ¾Êý¤ËÂ礤¯³«¤¯ÀÞ¤ì¸Í¤òÁªÂò¤·¡¢¼ýǼ¤·¤¿¥·¥å¡¼¥ºÎब°ìÌܤÇÁ´¤Æ¸«¤¨¤ë¤è¤¦¤Ë¤·¤Þ¤·¤¿¡£¤³¤ì¤Ê¤é¤ªÌÜÅö¤Æ¤Î·¤¤âľ¤°¤Ë¸«¤Ä¤«¤ê¤Þ¤¹¡£¤µ¤é¤Ë6ÃʤÎê¤Ï¼ç¤Ë·¤Ãª¤È¤·¤Æ»ÈÍѤ·¤Þ¤¹¤¬¡¢²¼Éô¤Ï¶õ¤¤¤Æ¤¤¤ë¤¿¤á¥Ó¡¼¥ë¥±¡¼¥¹¤äµ¨Àá¤Î²ÈÅÅ(¥ª¥¤¥ë¥Ò¡¼¥¿¡¼¤ä¥¹¥È¡¼¥ÖÎà)¡¢ËɺÒÍѶñ¡¢¹©¶ñÎà¤Ê¤É¤ª²È¤ÎÃæ¤Ç¼ýǼ¤·¤Å¤é¤¤²Ùʪ¤â¥¹¥Ã¥¥ê¼ýǼ¤·¤Æ¤¤¤¿¤À¤±¤Þ¤¹¡£
²Ùʪ¤ÎÎ̤âÇİ®¤·¤ä¤¹¤¤¤¿¤á¡¢´ÉÍý¤â¤·¤ä¤¹¤¯¤Ê¤ê¤Þ¤¹¡£

Ä̾ï¤Î·úÇä½»Âð¤Ç¤Ï´ûÀ½Éʤθ¼´Ø¼ýǼ¤Î¾ì¹ç¤¬Â¿¤¤¤Ç¤¹¤¬¡¢º£²ó¤Î¤ª²È¤ÏÃíʸ½»Âð¤Ê¤Î¤Ç´Ö¼è¤ê¤ò¹Í¤¨¤ëÃʳ¬¤Ç¼ýǼÎ̤ʤɤò¤ª»Ü¼çÍͤˤª»Ç¤¤¤·¤Ê¤¬¤é¸¡Æ¤¡£ ¤ª»Ü¼çÍͤˤȤäÆÉ¬Íפʥ¹¥Ú¡¼¥¹¤ò³ÎÊݤ¹¤ë¤³¤È¤¬¤Ç¤¤Þ¤·¤¿¡£
¤µ¤é¤Ë¤³¤Î¥·¥å¡¼¥º¥¯¥í¡¼¥¼¥Ã¥È¤Î²£Ê¤ӤËϲ¼¤«¤é»È¤¨¤ëÂ礤á¤Î¼ýǼ¤ò¤â¤¦°ì¤ÄÀßÃÖ¤·¤Þ¤·¤¿¡£¸¼´Ø¼ýǼ¤ÈƱ¤¸¤è¤¦¤Ë¹â¤µ¤ÏÅ·°æ¤Þ¤Ç¤¢¤ê¡¢²£Éý¤Ï90cm¡£¤³¤Á¤é¤Ë¤â¤¿¤¯¤µ¤ó¤Î²Ùʪ¤¬Æþ¤ê¤Þ¤¹¡£¸¼´Ø¼ýǼ¤ÈÆþ¤ì¤ë²Ùʪ¤Î¼ïÎà¤òʬ¤±¡¢¸úΨŪ¤Ë¼ýǼ¤·¤Æ¤¤¤¿¤À¤±¤Þ¤¹¡£
¸¼´ØÍѤμêÀö¤¤¥¹¥Ú¡¼¥¹
¶áǯ¤Î¿··¿¥³¥í¥Ê¥¦¥£¥ë¥¹Âкö¤ä²È²¤Î·ò¹¯¤Ê¤É¤ò¹Í褵¤ì¡¢1³¬¤ËÀöÌÌ¥¹¥Ú¡¼¥¹¤ÎÀßÃÖ¤ò´õ˾¤µ¤ì¤ëÊý¤¬Áý¤¨¤Æ¤¤¤Þ¤¹¡£º£²ó¤Î¤ª»Ü¼çÍͤ⤴Í×˾¤ò¤¤¤¿¤À¤¡¢1³¬¤Ë¼êÀö¤¤¥¹¥Ú¡¼¥¹¤ò¤¤ê¤Þ¤·¤¿¡£¾ì½ê¤Ï¸¼´Ø¥Û¡¼¥ë¤ò¾å¤¬¤Ã¤Æ¤¹¤°¤Î¾ì½ê¤Ç¤¹¡£
¸¼´ØÂ¦¤«¤é¸«¤ë¤È¤Á¤ç¤¦¤É¼ýǼ¤¬ÊɤȤʤ뤿¤áÌܱ£¤·¤Ë¤Ê¤ê¡¢¸¼´Ø¤ËΩ¤Ä¤ªµÒÍͤ«¤é¤Ï¸«¤¨¤Þ¤»¤ó¡£
¤Þ¤¿¡¢¥È¥¤¥ì¤Î¤¹¤°¶á¤¯¤Ê¤Î¤Ç¥È¥¤¥ì¸å¤Î¼êÀö¤¤¥¹¥Ú¡¼¥¹¤È¤·¤Æ¤â»È¤¨¤ÆÊØÍø¤Ç¤¹¡£

ÀßÃÖ¤µ¤ì¤ëÀöÌÌÂæ¤Ï¥µ¥ó¥ï¥«¥ó¥Ñ¥Ë¡¼¼Ò¤Îµ¡Ç½Åª¤Ç¥³¥ó¥Ñ¥¯¥È¤ÊÀöÌÌÂæ¡£ÊØÍø¤Ë»È¤¨¤ë¤è¤¦¤Ë²£¤ÎÊɤ˥³¥ó¥»¥ó¥È¤òÀßÃÖ¤·¡¢¥É¥é¥¤¥ä¡¼¤Ê¤É¤ÎÅŲ½À½Éʤâ»ÈÍѤǤ¡¢Ä«¤Î½àÈ÷¤Ç¤´²È²¤¬¹þ¤ß¹ç¤Ã¤Æ¤¤¤ë¤È¤¤Ï2³¬¤ÎÀöÌ̼¼¤À¤±¤Ç¤Ê¤¯¤³¤Á¤é¤Ç¤âÄ«¤Î½àÈ÷¤¬²Äǽ¤Ç¤¹¡£
»Å»öÉô²°
¼«Âð¤Ç»Å»ö¤ò¤µ¤ì¤ë±üÍͤè¤ê¡Ö½¸Ãæ¤Ç¤¤ë»Å»öÉô²°¡×¤òÍߤ·¤¤¤±¤É¡¢LDK¤Î²È²¤Î»Ñ¤¬¸«¤¨¤Æ¡¢¤Þ¤¿¡¢²È²¤«¤é¤â»Å»öÉô²°¤ÎÍͻҤ¬¸«¤¨¤ë¤è¤¦¤Ë¤·¤¿¤¤¡£¤Þ¤¿¡¢ÍèµÒ¤âµ¤ÉÕ¤±¤ë¤è¤¦¤Ë¤·¤¿¤¤ ¤È¤´Í×˾¤ò¤¤¤¿¤À¤¡¢»Å»öÉô²°¤Ï1³¬LDK¤È¸¼´Ø¤Î¤É¤Á¤é¤Ë¤â¶á¤¤°ÌÃÖ¤ËÇÛÃÖ¤·¤Þ¤·¤¿¡£¹¤µ¤Ï3¾ö¤È·è¤·¤Æ¹¤¯¤Ï¤¢¤ê¤Þ¤»¤ó¤¬¡¢ ¸Ä¼¼¤Ç½¸Ã椷¤Æ¤ª»Å»ö¤ò¤·¤Æ¤¤¤¿¤À¤±¤Þ¤¹¡£
¤µ¤é¤ËLDK¤Ç¤¯¤Ä¤í¤°²È²¤ÎÍͻҤò³Îǧ¤·¤ä¤¹¤¯¡¢¤½¤·¤Æ²È²¤«¤é¤â»Å»öÉô²°¤ÎÃæ¤ÎÍͻҤ¬¸«¤¨¤ë¤è¤¦¤ËLDK¤È»Å»öÉô²°¤Î´Ö¤ÎÊɤˤϤª¤·¤ã¤ì¤ÊÆâÁë¤òÀߤ±¤Þ¤·¤¿¡£
ÆâÁë¤ÎÂ礤µ¤Ï1Ëç¤ÎÁ뤬³«¤±ÊĤᤷ¤ä¤¹¤¤¥µ¥¤¥º¤Ë¤Ê¤ë¤è¤¦¹Íθ¤·¡¢²£2Îó×½Ä3ÃʤÎ6ʬ³ä¤ÎÁë¡£
°ìÈÖ¾å¤ÎÁë¤Î2¤Ä¤Ï³«ÊĤǤ¡¢´¹µ¤¤À¤±¤Ç¤Ê¤¯LDK¦¤Î²È²¤ÎÏä·À¼¤ä¶õµ¤´¶¤â´¶¤¸¤ë¤³¤È¤¬¤Ç¤¤Þ¤¹¡£
ÀßÃÖ¤¹¤ë¥¬¥é¥¹¤Ï¥¯¥ê¥¢¤ÊÆ©ÌÀ¥¬¥é¥¹¡¢ÁëÏÈÉôʬ¤Ï¥Þ¥Ã¥È¤Ê¥Ö¥é¥Ã¥¯¤Ç¤ªÉô²°Á´ÂΤò°ú¤Äù¤á¤ë¤ª¤·¤ã¤ì¤Ê¥Ç¥¶¥¤¥ó¡£


»Å»öÉô²°¤Î¥É¥¢¤Ï¥Ú¥ó¥¤ÇÅÉÁõ¤·¤¿¤è¤¦¤ÊÉ÷¹ç¤¤¤Î¿¼¤¤¥Í¥¤¥Ó¡¼¥«¥é¡¼¤ÇÛÚÁȤΥô¥£¥ó¥Æ¡¼¥¸¤ÊÊ·°Ïµ¤¡£¤ª²È¤ÎÀßÈ÷¤ä¥É¥¢¤ò³Îǧ¤¹¤ë¤¿¤á¥·¥ç¡¼¥ë¡¼¥à¤Ë¹Ô¤«¤ì¤¿ºÝ¤Ë¤³¤Î¥É¥¢¤ò¸«¤Æµ¤¤ËÆþ¤é¤ì¡¢Áª¤Ð¤ì¤Þ¤·¤¿¡£
¤Þ¤¿¡¢¸¼´Ø¤ËΩ¤Ä¤Èϲ¼¤ÎÀè¡¢¤Û¤ÜÀµÌ̤ˤ³¤Î¥É¥¢¤¬¤¢¤ê¡¢¤ªµÒÍͤˤâ¤è¤¯¸«¤¨¤ë°ÌÃ֤ǡ¢Ìܤò°ú¤¯¤ª¤·¤ã¤ì¤Ê¥É¥¢¤Ç¸¼´Ø¼þ¤ê¤Î¥¢¥¯¥»¥ó¥È¤È¤Ê¤Ã¤Æ¤¤¤Þ¤¹¡£
»Å»öÉô²°ÆâÉô¤ÎÊÉ¥¯¥í¥¹¤Ï¥ô¥£¥ó¥Æ¡¼¥¸É÷¤Ç¸Å¤¤ÁҸˤΤ褦¤Ê¥ì¥ó¥¬ÊÁ¡£¥Í¥¤¥Ó¡¼¥É¥¢¤È¤ÎÁȤ߹ç¤ï¤»¤¬¤È¤Æ¤âÁÇŨ¤Ç¤¹¡£¤µ¤é¤ËLDK¦¤«¤é¤ÏÆâÁë¤òÄ̤·¤Æ¤³¤Î¥ì¥ó¥¬¤Î¥¯¥í¥¹¤¬¸«¤¨¡¢LDK¥Ç¥¶¥¤¥ó¤Î¥¢¥¯¥»¥ó¥È¤Ë¤â¤Ê¤Ã¤Æ¤¤¤Þ¤¹¡£

¤Þ¤¿¡¢»Å»öÉô²°¤ÎÆâÁ릤˥ǥ¹¥¯¤ò¤ºîͽÄê¡£PCºî¶ÈÃæ¤Ç¤â¤Õ¤È´é¤ò¾å¤²¤ë¤È¡¢ÆâÁë±Û¤·¤ËLDK¤ÎÍͻҤ¬¸«¤¨¤Þ¤¹¡£
¥Ç¥¹¥¯¤Ë¤Ï½¸À®ºà¤ò»È¤¤¤Þ¤¹¡£¡Ö½¸À®ºà¡×¤È¤Ï¡¢¾®¤µ¤¯ÀÚ¤êʬ¤±¤¿ÌÚºà¤ò´¥Á礵¤»¡¢ÀÜÃåºÞ¤ÇÁȤ߹ç¤ï¤»¤¿ÌÚºà¤Ç¤¹¡£¶¯ÅÙ¤äÉʼÁ¤¬°ÂÄꤷ¤Æ¤¤¤ë¤¿¤á°·¤¤¤ä¤¹¤¯¡¢¥Æ¡¼¥Ö¥ë¤ÎÅ·ÈĤʤɤβȶñÁǺà¤È¤·¤Æ¤è¤¯ÍѤ¤¤é¤ì¤Þ¤¹¡£»ÈÍѤ¹¤ë¾²ºà¤È¤Î¿§¹ç¤¤¤äÊ·°Ïµ¤¤ò¹ç¤ï¤»¡¢Åý°ì´¶¤Î¤¢¤ë¥Ç¥¶¥¤¥ó¤Ë¤Ê¤ëͽÄê¤Ç¤¹¡£
LDK¥¹¥Ú¡¼¥¹
LDK¤ÎÆþ¤ê¸ýÈâ¤â»Å»öÉô²°¤Î¥Í¥¤¥Ó¡¼¤Î¥É¥¢¤ÈƱ¤¸¤¯¡¢¥·¥ç¡¼¥ë¡¼¥à¤Ç¸«¤é¤ìÁª¤Ð¤ì¤¿¤ª¤·¤ã¤ì¤Ê¥É¥¢¡£ÛÚÁȥǥ¶¥¤¥ó¤Ç¥É¥¢¤Î¾åȾʬ¤Ï¥¬¥é¥¹¤ÎÁÈ»ÒÆþ¤ê¡£¥¬¥é¥¹¤ÏÆ©ÌÀ¥¿¥¤¥×¤Çϲ¼¤«¤éLDK¤ÎÍͻҤ¬³Îǧ¤·¤ä¤¹¤¯Î¾Êý¤Î¥¹¥Ú¡¼¥¹¤Ë¸÷¤òÆþ¤ì¤ë¸ú²Ì¤â¡£
È⥫¥é¡¼¤ÏËÌÊÆ»º¤Î¥ì¥Ã¥É¥ª¡¼¥¯¤Î¤è¤¦¤Ê¡¢»þ¤ò·Ð¤¿Àá¤äÌÚÌܤÎÉ÷¹ç¤¤¤òɽ¸½¤·¤¿ÊÁ¤Ç¤¹¡£¤³¤Î¥É¥¢¤òÁª¤Ð¤ì¤¿Íýͳ¤Î°ì¤Ä¤ÏÀßÃÖ¸å¤Ë¤ª¹¥¤ß¤Î¿§¤Ë¥Ú¥¤¥ó¥È¤Ç¤¤ë¤«¤é¤À¤½¤¦¤Ç¤¹¡£
ºÇ½é¤Ï¥Ê¥Á¥å¥é¥ë¤ÊÌÚÌÜÊÁ¤ò³Ú¤·¤ó¤À¤¢¤È¡¢»þ´Ö¤¬·Ð¤Ã¤¿¤éÊ̤理ØÅɤêÂØ¤¨¤·¡¢¥¤¥á¡¼¥¸¥Á¥§¥ó¥¸¤â³Ú¤·¤ó¤Ç¤â¤é¤¨¤ë¥É¥¢¤Ç¤¹¡£

ÁÇŨ¤Ê¥É¥¢¤ò³«¤±¤ÆLDK¤ØÆþ¤ë¤È¡¢¤¹¤°±¦Â¦¤ËÂÐÌ̼°¤Î¥¥Ã¥Á¥ó¥¹¥Ú¡¼¥¹¡£¤½¤·¤Æ¥¥Ã¥Á¥ó¤Î¶á¤¯¤Ë¤â¼ýǼ¤òÇÛÃÖ¡£¿©ÎÁÉʤ䥹¥È¥Ã¥¯Éʤò¤¿¤¯¤µ¤óÇã¤Ã¤ÆÍè¤Æ¤âÂç¾æÉפÊÂçÍÆÎ̤μýǼ¤Ç¤¹¡£
¥¥Ã¥Á¥ó¤ÎÀµÌ̤ˤϥÀ¥¤¥Ë¥ó¥°¤È¥ê¥Ó¥ó¥°¤¬°ìľÀþ¤Ëʤӡ¢LDK¤Î¤É¤Î¾ì½ê¤Ë¤¤¤Æ¤â¡¢²È²¤¬°ì˾¤Ç¤¤ëÇÛÃ֤Ǥ¹¡£¤Þ¤¿³¬Ãʤϥê¥Ó¥ó¥°¥¤¥ó³¬Ãʤǡ¢²È²¤Îµ¢Âð»þ¤ÏÀè¤Û¤É¤Î»Å»öÉô²°¤È·Ò¤¬¤Ã¤¿ÆâÁë¤ÎÁ°¤òÄ̤ꡢ2³¬¤Ø¾å¤¬¤ë¤¿¤á¡¢²È²¤Îư¤¤¬Çİ®¤Ç¤¤´É×ÉØ¤â°Â¿´¡£
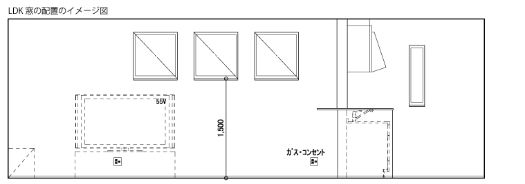
²È²¤¬¤¯¤Ä¤í¤°LDK¤ÏÀ¾Â¦Æ»Ï©¤ÈÆî¦¤Î¼«Âð¤ÎÃó¼Ö¥¹¥Ú¡¼¥¹¤ËÌ̤·¤Æ¤¤¤Þ¤¹¡£Ä̹Կͤ«¤é¸«¤¨¤Ê¤¤¡¢Ìܤ¬¹ç¤ï¤Ê¤¤¤è¤¦½ÐÍè¤ë¸Â¤ê¥×¥é¥¤¥Ð¥·¡¼¤ò¹Íθ¤·¤Æ¡¢¹â¤¤°ÌÃÖ¤ËÁë¤ò¤¤ê¤Þ¤·¤¿¡£ ¤Þ¤¿¡¢¥×¥é¥¤¥Ð¥·¡¼¤À¤±¤Ç¤Ê¤¯¡¢ºÎ¸÷¤äÉ÷Ä̤·¡¢³°¤«¤é¤Î¸«¤¿Ìܤä¥Ç¥¶¥¤¥óÀ¡¢¤µ¤é¤Ë²È¶ñ¤ÎÇÛÃÖ¤ò¹Íθ¤·¤Æ·èÄꤷ¤Þ¤·¤¿¡£
¤Þ¤ºÀ¾¤Îƻϩ¦¤ÎÊÉ(¥À¥¤¥Ë¥ó¥°¤È¥ê¥Ó¥ó¥°¤Î´Ö¤Î°ÌÃÖ)¤Ë70cm»ÍÊý¤ÎÀµÊý·Á¤ÎÁë¤ò3¤Äʤ٤ÆÇÛÃÖ¡£
¥ê¥Ó¥ó¥°¤Î¾²¤«¤é1.5m¤Û¤É¤Î¹â¤µ¤Ë¤·¤ÆÊɤβ¼Éôʬ¤ò¶õ¤±¡¢¥Æ¥ì¥Ó¤Ê¤É¤Î²È¶ñ¤òÇÛÃÖ¤·¤ä¤¹¤¯¤·¤Þ¤·¤¿¡£

¼¼Æâ¤«¤é¸«¤ë¤È1.5m¤Î¹â¤µ¤Ç¤¹¤¬¡¢¼¼Æâ¤Èƻϩ¤Ç¤Ï¹âÄ㺹¤¬¤¢¤ë¤¿¤á¡¢Æ»Ï©Â¦¤«¤é¸«¤ë¤È¡¢¤³¤ÎÁë¤Ï2m°Ê¾å¤Î¹â¤µ¡£Ä̹Կͤ«¤é¤ª²È¤ÎÃæ¤Ï¸«¤¨¤Ë¤¯¤¯¤Ê¤Ã¤Æ¤¤¤Þ¤¹¡£
Ʊ¤¸¤è¤¦¤ËÆî¦¤ËÀߤ±¤¿Áë¤â³°Éô¤«¤é¸«¤ë¤ÈÃÏÌ̤«¤é2m°Ê¾å¹â¤¤°ÌÃ֤Ȥʤꡢ¸÷¤ÈÉ÷¤Ï¤·¤Ã¤«¤ê¤ÈÆþ¤ê¤Þ¤¹¤¬¡¢¥×¥é¥¤¥Ð¥·¡¼¤Ï³ÎÊÝ¡£¿¯Æþ¤·¤Ë¤¯¤¤¹â¤µ¤Î¤¿¤áËÉÈȾå¤â°ÂÁ´¤Ç¤¹¡£
¥µ¥ó¥ë¡¼¥à¥¹¥Ú¡¼¥¹
¡Ö¼¼Æâ´³¤·¤¬¤Ç¤¤ë¥¹¥Ú¡¼¥¹¤¬Íߤ·¤¤¡×¤È¤´´õ˾¤ò¤¤¤¿¤À¤¡¢20¾ö¤ÎLDK¤ÎÆüÅö¤¿¤ê¤ÎÎɤ¤ÆîÅ즥¹¥Ú¡¼¥¹¤Î°ì²è¤Ë4¾öʬ¤Îʪ´³¤··ó¥µ¥ó¥ë¡¼¥à¥¹¥Ú¡¼¥¹¤ò·×²è¤·¤Þ¤·¤¿¡£
¤½¤·¤Æ¥ê¥Ó¥ó¥°¤ÎÆî¦¤Ë¤ÏÄí¤¬¤¢¤ê¡¢¤³¤ÎÄí¤Ø¤Î½ÐÆþ¤ê¤ä¸÷¤¬¤¿¤¯¤µ¤óÆþ¤ë¤è¤¦Áݤ½Ð¤·Áë¤òÀßÃÖ¡£
¤µ¤é¤ËÅ즤˹âÁë¤òÇÛ¤·¡¢Æî¦¤ÈÅ즤ÎξÊý¤«¤é ¤¿¤¯¤µ¤ó¤Î¸÷¤ÈÉ÷¤¬Æþ¤êÀöÂõʪ¤â¤·¤Ã¤«¤ê´¥¤¯¤è¤¦¤Ë·×²è¤·¤Æ¤¢¤ê¤Þ¤¹¡£
¼¼Æâ´³¤·¥¹¥Ú¡¼¥¹¤ÏLDK¤è¤ê1Ãʾ²¤ò²¼¤²¡¢¾²¤Ïø¤¤¥°¥ì¡¼¿§¤Î¥¹¥È¡¼¥óÄ´¤ÎÀµÊý·Á¤Î¥Õ¥í¥¢¥¿¥¤¥ë¤òŽ¤ê¡¢¤ª¤·¤ã¤ì¤Ê¥µ¥ó¥ë¡¼¥à¤È¤·¤Æ¤â»ÈÍѤǤ¤ë¥¹¥Ú¡¼¥¹¤Ç¤¹¡£
¤µ¤é¤Ë¤³¤Î¥µ¥ó¥ë¡¼¥à¤ÎÁݤ½Ð¤·Áë¤ÈÆî¤ÎÄí¤Î´Ö¤Ë¹âÄ㺹¤¬¤¢¤ë¤¿¤á¡¢½ÐÆþ¤ê¤·¤ä¤¹¤¤¤è¤¦Äí¤Ë¿ôÃÊʬ¤Î¥¹¥Æ¥Ã¥×³¬Ãʤâ·×²èÃæ¤Ç¤¹¡£
¤ª»Ü¼çÍÍÛ©¤¯¡Ö¤³¤Î³¬Ãʤ˥٥ó¥Á¤Î¤è¤¦¤ËºÂ¤Ã¤Æ¡¢¤ª»Ò¤µ¤ó¤È°ì½ï¤ËÆü¸þ¤Ü¤Ã¤³¤ò¤·¤Ê¤¬¤éÄí¤òį¤á¤¿¤ê¡¢¤ª»Å»ö¤È²È»ö¤Î¹ç´Ö¤Ë°ì©¤Ä¤¤¤¿¤ê¤¹¤ë¥¹¥Ú¡¼¥¹¤Ë¤â¤Ê¤ê¤½¤¦¡×¤È¤Î¤³¤È¡£
¤ªÀöÂõʪ¤¬Ìµ¤¤Æü¤Ï¥µ¥ó¥ë¡¼¥à¤Ë¥Æ¡¼¥Ö¥ë¤È°Ø»Ò¤òÃÖ¤¤¤Æ¡¢ ¥Ï¡¼¥Ö¥Æ¥£¡¼¤ä¥¢¡¼¥ë¥°¥ì¥¤¤Ê¤ó¤Æ°û¤ß¤Ê¤¬¤éÉ÷¤Ë¤¢¤¿¤Ã¤¿¤ê¡¢¤³¤Á¤é¤ÇÄ«¿©¤ò³Ú¤·¤à¤³¤È¤â²Äǽ¤Ç¤¹¡£
²È²¤Î¥Û¥Ã¤È°ì©¤Ä¤±¤ë·Æ¤¤¤Î¥¹¥Ú¡¼¥¹¤È¤Ê¤ê¤½¤¦¤Ç¤¹¡£
¥ë¥Ó¡¼¥ì¥Ã¥É¤Î¤¤ÎÈâ
ÂǤÁ¹ç¤ï¤»¤Ë¤Æ¡Ö¤ª²È¤Î¤É¤³¤«¤Ë ¤³¤ó¤ÊÈâ¤Ï¤Ç¤¤Þ¤¹¤«¡©¡×¤ÈËÂ礤¯³«¤¯¡¢Î¾³«¤¥É¥¢¤Î¤ª¤·¤ã¤ì¤Ê¥¤¥á¡¼¥¸¼Ì¿¿¤ò¿¿ô¸«¤»¤Æ¤¤¤¿¤À¤¤Þ¤·¤¿¡£Â礤ʳ«¤¸Í¤òÀßÃ֤Ǥ¤ë¾ì½ê¤ò¸¡Æ¤¤¹¤ë¤È¡¢LDK¤È¥µ¥ó¥ë¡¼¥à¤Î´Ö¤ÎÊɤʤ顢Êɤ¬¹¤¯¥¹¥Ú¡¼¥¹¤¬¤¢¤ê¡¢¤·¤«¤â¥µ¥ó¥ë¡¼¥à¤È¥ê¥Ó¥ó¥°´Ö¤ò¤ª¤·¤ã¤ì¤Ë±é½Ð¤Ç¤¤ë¤¿¤á¡¢¤³¤Î¾ì½ê¤ËÈâ¤òÀßÃÖ¤¹¤ë¤³¤È¤Ë¡£
¥É¥¢¤ÎÁǺà¤Ï¥Ñ¥¤¥óºà(¾¾)¡£¥«¥¿¥í¥°¤Ç°ìÌܹû¤ì¤µ¤ì¤¿¥ì¥È¥í¤ÊÊ·°Ïµ¤¤ÎÛÚÁȤΥǥ¶¥¤¥ó¤Ç¡¢Èâ¤Î¾åȾʬ¤Ï¥¬¥é¥¹Æþ¤ê¤ÎÁȻҤˤʤäƤ¤¤Þ¤¹¡£
ÁȻҤÎÃæ¤Î¥¬¥é¥¹¤Ï¥ê¥Ó¥ó¥°¤«¤é¥µ¥ó¥ë¡¼¥à¤ÎÃæ¤¬¸«¤¨¤ë¤è¤¦Æ©ÌÀ¥¬¥é¥¹¤òÁª¤Ð¤ì¤Þ¤·¤¿¡£³¤³°¤Î½»Âð¤Ë¤¢¤ë¤è¤¦¤Ê¥Ç¥¶¥¤¥ó¤Ç¤¹¡£
¤µ¤é¤Ë¤³¤Î¥É¥¢¤òÊ·°Ïµ¤¤Î¤¢¤ë¥¯¥é¥·¥Ã¥¯¤Ê¥ë¥Ó¡¼¥ì¥Ã¥É¥«¥é¡¼¤ÇÅÉÁõ¤·¤Þ¤¹¡£(²¼¿Þ¥¤¥á¡¼¥¸»²¾È)
¥«¥é¡¼¤Ï¤¿¤¯¤µ¤ó¤Î¥µ¥ó¥×¥ë¤ÎÃæ¤«¤éǺ¤Þ¤ì¡¢Áª¤Ð¤ì¤¿°ì¿§¤Ç¤¹¡£¤Þ¤¿¡¢¥É¥¢¥Î¥Ö¤Ï¶ÊÀþŪ¤Ç½À¤é¤«¤¤¾åÉʤʰõ¾Ý¤Î¥Ç¥¶¥¤¥ó¡£¥«¥é¡¼¤Ï¥Ö¥í¥ó¥º¿§¤Ç¡¢¥¯¥é¥·¥Ã¥¯¤ÊÈâ¤Î¥Ç¥¶¥¤¥ó¤È¥Ô¥Ã¥¿¥ê¡£¤³¤Î¼è¤Ã¼ê¤òÁȤ߹ç¤ï¤»¤µ¤é¤ËÌ£¤Î¤¢¤ë¥É¥¢¤Ë¡£
¿¼¤ß¤Î¤¢¤ë¥¯¥é¥·¥Ã¥¯¤Ê¥ì¥Ã¥É¥«¥é¡¼¤Î¥É¥¢¤Ï¡¢¤È¤Æ¤â¸ºß´¶¤Î¤¢¤ëƲ¡¹¤È¤·¤¿¥É¥¢¤ÇLDKÁ´ÂΤÎÁÇŨ¤Ê¥¢¥¯¥»¥ó¥È¤Ë¤Ê¤Ã¤Æ¤¤¤Þ¤¹¡£


̵¹¤¤Î¥Õ¥í¡¼¥ê¥ó¥°ºà
³¤¤¤Æ¤Ï¥Õ¥í¡¼¥ê¥ó¥°ºà¤Î¤´¾Ò²ð¤Ç¤¹¡£º£²óÁª¤Ð¤ì¤¿¥Õ¥í¡¼¥ê¥ó¥°ºà¤Ï¥í¥Ã¥¸¥Ý¡¼¥ë¥Ñ¥¤¥óºà¤È¤¤¤¦Ìµ¹¤¤Î¥Þ¥Äºà(¾¾)¡£¿§¤Ï¥Ê¥Á¥å¥é¥ë¥«¥é¡¼¤Ç¤¹¡£
¤è¤¯¸«¤«¤±¤ë¥Ñ¥¤¥óºà¤Î¥Õ¥í¡¼¥ê¥ó¥°¤Ï¥¥ì¥¤¤á¤Î¡¢¿·¤·¤¤ÌÚºà¤òÀڤäƤ½¤Î¤Þ¤Þ»È¤Ã¤¿¤è¤¦¤Ê¥¤¥á¡¼¥¸¤¬¤¢¤ê¤Þ¤¹¤¬¡¢º£²ó¤Î¥Õ¥í¡¼¥ê¥ó¥°ºà¤Ï¾¯¤·¥À¥á¡¼¥¸´¶¤¬¤¢¤ë¤è¤¦¤ÊÌ£¤¬¤¢¤ê¡¢»þ¤¬·Ð¤Ä¤Û¤É¥¢¥ó¥Æ¥£¡¼¥¯²È¶ñ¤Î¤è¤¦¤ËÌ£¤ï¤¤¤¬Áý¤·¤Þ¤¹¡£
ÀèÄø¤´¾Ò²ð¤·¤¿¥ë¥Ó¡¼¥ì¥Ã¥É¤Î¥É¥¢¤È¤âÁêÀ¤¬GOOD¡£¤Þ¤¿¡¢¹á¤ê¤â¤È¤Æ¤âÎɤ¤¤Î¤Ç¡¢¤ª²È¤ÎÃæ¤ØÆþ¤Ã¤¿½Ö´Ö¤Ë¤½¤Î°ã¤¤¤Ëµ¤ÉÕ¤¤¤Æ¤¤¤¿¤À¤±¤Þ¤¹¡£
¤Þ¤¿¡¢¥Ç¥¶¥¤¥óÀ¤À¤±¤Ç¤Ê¤¯¼ê¿¨¤ê¡¢Â¿¨¤ê¤ÎÍ¥¤·¤µ¤â¥Ê¥Á¥å¥é¥ë¤Ç¥µ¥é¥ê¤È¤·¤Æ¤ª¤ê¡¢ÁǤÇÊ⤲ó¤ê¤¿¤¯¤Ê¤ëµ¤»ý¤ÁÎɤµ¤¬¤¢¤ê¤Þ¤¹¡£
¤½¤·¤Æ¤â¤¦°ì¤Ä¡¢Â䶤·¤Æ¤¤¤¿¤À¤±¤ë¸ú²Ì¤¬Ä´¼¾Àǽ¤Ç¤¹¡£¼¼Æâ¤Î;ʬ¤Ê¼¾µ¤¤òµÛ¼ý¤·¡¢µÕ¤Ë¼¾ÅÙ¤¬Â¤ê¤Ê¤¤»þ¤ÏÇӽФ·¤Æ¤ªÉô²°¤ÎÃæ¤Î¼¾ÅÙ¤ò¥³¥ó¥È¥í¡¼¥ë¤·¤Æ¤¯¤ì¤ë¸ÆµÛ¤¹¤ë¾²ºà¤Ç¤¹¡£
ÂǤÁ¹ç¤ï¤»Åö½é¤Ï¾æÉפÊÁǺà¤ÎÊý¤¬Îɤ¤¡¢¤È¹çÈÄ¤Î¥Õ¥í¡¼¥ê¥ó¥°ºà¤ò¸¡Æ¤¤µ¤ì¤Æ¤¤¤Þ¤·¤¿¤¬¡¢Åö¼Ò¤ÎÆâÍ÷²ñ¤ä»Ü¹©Îã¤Ç̵¹¤¤Î¥Õ¥í¡¼¥ê¥ó¥°ºà¤ò¼ÂºÝ¤Ë¤´Í÷¤Ë¤Ê¤é¤ì¡¢È©¿¨¤ê¤äÊ·°Ïµ¤¤ÎÎɤµ¤òµ¤¤ËÆþ¤Ã¤Æ¤¤¤¿¤À¤¡¢ºÎÍѤµ¤ì¤Þ¤·¤¿¡£
2³¬¥Õ¥í¥¢¡¼¤Ø
2³¬¥Õ¥í¥¢¡¼¤Ø¾å¤¬¤ë¤ÈÀµÌ̤Ëϲ¼¤¬¤¢¤ê¡¢¤³¤Îϲ¼¤ÎË̦¤Ë»Ò¤É¤âÉô²°¤ò1¤Ä¡£Å즤ËÀöÌ̼¼¤È¤ªÉ÷Ϥ¡£¤½¤·¤ÆÀ¾Â¦¤ËÂ礤ʥե¡¥ß¥ê¡¼¥¯¥í¡¼¥¼¥Ã¥È¡£¤³¤Î¥Õ¥¡¥ß¥ê¡¼¥¯¥í¡¼¥¼¥Ã¥È¤È¤Ä¤Ê¤¬¤ëÆî¦¤Ë¼ç¿²¼¼¤È¥Ð¥ë¥³¥Ë¡¼¤òÇÛÃÖ¡£¤µ¤é¤ËÆî¦¤Ë¤Ï»Ò¤É¤âÉô²°¤ò¤â¤¦1¤ÄÇÛÃÖ¤·¤Æ¤¤¤Þ¤¹¡£
¥Õ¥¡¥ß¥ê¡¼¥¯¥í¡¼¥¼¥Ã¥È¤Ï3¾ö¤Î¹¤µ¤¬¤¢¤ê¡¢²È²¤Î²Ùʪ¤äÍÎÉþ¤ò°ì³ç¤Ç´ÉÍý¤Ç¤¤ë¤è¤¦¤Ë·×²è¤·¤¿¥¯¥í¡¼¥¼¥Ã¥È¤Ç¤¹¡£Æþ¸ý¤Ï¿²¼¼¤È¤Î·Ò¤¬¤ê¤À¤±¤Ç¤Ê¤¯¡¢ ²È²Á´°÷¤¬»È¤¤¤ä¤¹¤¤¤è¤¦Ï²¼¤Ë¤âÆþ¸ý¤òÀߤ±¤¿2WAY¥¿¥¤¥×¤Ç¤¹¡£
ϲ¼¤«¤é¼ç¿²¼¼¤ØÄ̤êÈ´¤±¤¬¤Ç¤¡¢µ¢¤ê¤¬ÃÙ¤¯¤Ê¤Ã¤¿¤´²È²¤â¡¢¤³¤Î¥¯¥í¡¼¥¼¥Ã¥È¤ÎÃæ¤ÇÃåÂØ¤¨¤ò¤¹¤Þ¤»¡¢²È²¤òµ¯¤³¤µ¤º¤Ë¿²¼¼¤ä³Æµï¼¼¤ØÆþ¼¼¤Ç¤¤Þ¤¹¡£
¤Þ¤¿¡¢¥Õ¥¡¥ß¥ê¡¼¥¯¥í¡¼¥¼¥Ã¥È¤È¿²¼¼¡¢¥Ð¥ë¥³¥Ë¡¼¡¢ÀöÌ̼¼¤¬Æ±¤¸¥Õ¥í¥¢¡¼¤Ê¤Î¤Ç¡¢ÉÛÃÄ´³¤·¡¢ÀöÂõ´³¤·¡¢¥Õ¥¡¥ß¥ê¡¼¥¯¥í¡¼¥¼¥Ã¥È¤Ø¤Î¼ýǼ¤Þ¤Ç¤Îºî¶È¤¬¡¢¤³¤Î¥Õ¥í¥¢¡¼¤À¤±¤Ç´°·ë¤µ¤»¤ë¤³¤È¤â¤Ç¤¤Þ¤¹¡£
¤µ¤é¤Ë¾ö¤ó¤ÀÀöÂõʪ¤ÎÊÒÉÕ¤±¤â¡¢¤³¤Î¥Õ¥¡¥ß¥ê¡¼¥¯¥í¡¼¥¼¥Ã¥È 1¤«½ê¤À¤±¤Ç¤è¤¤¤¿¤á²È»ö¤â»þû¡£¸úΨŪ¤ÊưÀþ¤ÈÇÛÃ֤Ƿײ褵¤ì¤Þ¤·¤¿¡£
¤µ¤é¤Ë»Ò¶¡Éô²°¤ËÂ礤ʼýǼ¤ò¤â¤¦1¤«½ê¡£Ï²¼¤Ë¤â¥Õ¥¡¥ß¥ê¡¼¥¯¥í¡¼¥¼¥Ã¥È¤È¤ÏÊ̤Ë1¤«½ê¤È¡¢Â¾2¤«½ê¼ýǼ¤òÇÛÃÖ¤µ¤ì¤Æ¤ª¤ê¡¢¤ª»Ò¤µ¤ó¤ÎÀ®Ä¹¤Ë¹ç¤ï¤»¡¢¤É¤ó¤É¤óÁý¤¨¤Æ¤¤¤¯²Ùʪ¤â¤·¤Ã¤«¤ê¼ý¤Þ¤ë¤è¤¦¤Ë¡¢¹Í¤¨¤é¤ì¤Æ¤¤¤Þ¤¹¡£
¼ç¿²¼¼¤ÏÍÛÅö¤¿¤ê¤ÎÎɤ¤Æî¦¤Ë¤¢¤ë¤¿¤á¡¢ÍÛÅö¤¿¤êÈ´·²¤Î¥Ð¥ë¥³¥Ë¡¼¤â¤¤ê¤Þ¤·¤¿¡£
Ʊ¤¸¤¯Æî¦¤ËÇÛÃÖ¤·¤¿»Ò¶¡Éô²°¤ÎÆî¦ÊɤˤâÁë¤òÀߤ±¡¢¤³¤³¤«¤é²¼¤ÎÄí¥¹¥Ú¡¼¥¹¤ò¸«²¼¤í¤»¤ë¤è¤¦¤Ë¤Ê¤Ã¤Æ¤¤¤Þ¤¹¡£Æî¦¤«¤é¸÷¤¬¤¿¤Ã¤×¤êÆþ¤ë¡¢¤È¤Æ¤âÌÀ¤ë¤¤¥Õ¥í¥¢¡¼¤¬´°À®¤·¤Þ¤·¤¿¡ª
¥»¥ë¥í¡¼¥¹¥Õ¥¡¥¤¥Ð¡¼ÃÇÇ®ºà
ÃÇÇ®ºà¤Ï¥¹¥¿¥Ã¥Õ°ì²¡¤·¤Î¥»¥ë¥í¡¼¥¹¥Õ¥¡¥¤¥Ð¡¼ÃÇÇ®ºà¡£²¿ÅÙ¤«¤³¤Î¥ª¡¼¥×¥ó¥Ó¥ë¥É¾ðÊó¤Ç¤â¤´¾Ò²ð¤µ¤»¤Æ¤¤¤¿¤À¤Æ¤¤¤Þ¤¹¤¬¡¢ÃÇÇ®Àǽ¤ÏºÇ¶¯¡ª¤³¤Î¥»¥ë¥í¡¼¥¹¥Õ¥¡¥¤¥Ð¡¼¤Î¸¶ÎÁ¤Ï¥ê¥µ¥¤¥¯¥ë¤Î¸Å¿·Ê¹¤ò»È¤Ã¤Æºî¤é¤ì¤Æ¤ª¤ê¡¢¤³¤ì¤òºÙ¤«¤¯ºÛÃǤ·¤¹¤êÄÙ¤·¤¿¤â¤Î¤Ë¥Û¥¦»À¤òź²Ã¤·¤Æºî¤ê¤Þ¤¹¡£¤Á¤Ê¤ß¤Ë¥Û¥¦»À¤Ï´ã²Ê¤ÎÀö¾ô±Õ¤Ë¤â»È¤ï¤ì¤ë¿ÍÂΤ˰¿´¤Î¸¶ÎÁ¤Ç¤¹¡£¥·¥í¥¢¥ê¤ä¥´¥¥Ö¥ê¤Ê¤É¤Ë¤â¸ú²Ì¤¬¤¢¤ë¤¿¤á¡¢¤³¤ì¤é¤Î³²Ãî¤ò´ó¤»ÉÕ¤±¤Ë¤¯¤¯¤·¤Æ¤¯¤ì¤ë¸ú²Ì¤â¤¢¤ê¤Þ¤¹¡£
¤³¤Î¥»¥ë¥í¡¼¥¹¥Õ¥¡¥¤¥Ð¡¼¤òÊɤδ֤ʤɤËÀìÌç¤Î¿¦¿Í¤¬·ä´Ö¤¬½ÐÍè¤Ê¤¤¤è¤¦¤ËµÍ¤á¹þ¤ß¡¢µ¤Ì©À¤¬¹â¤¯¡¢ÃÇÇ®Àǽ¤Î¹â¤¤¤ª²È¤Ë¤Ê¤ê¤Þ¤¹¡£ÎäÃÈ˼¤Î¸ú¤¤¬¤è¤¯¡¢ÅߤÏÃȤ«¤¯¡¢²Æ¤ÏÎä·¤¤¤ª²È¤Ë¡£
¼ÂºÝ¤Ë¤ª»Ü¼çÍͤ«¤é¤ªÊ¹¤¤·¤¿Âθ³Ã̤Ǥ¹¤¬¡Ö¼¾ÅÙ¤¬¹â¤¤²Æ¾ì¤Ëµ¢Â𤹤ë¤È¡¢¥¯¡¼¥é¡¼¤òÉÕ¤±¤Æ¤¤¤Ê¤¯¤Æ¤â¤ª²È¤ÎÃæ¤Î¶õµ¤¤òÎä·¤¯´¶¤¸¡¢µ¤»ý¤Á¤¬Îɤ«¤Ã¤¿¡×¡Ö´¨¤¤ÅߤǤÏÌë¤Ë¾Ã¤·¤¿ÃÈ˼¤ÎÇ®¤¬³°¤Ëƨ¤²¤º¡¢Ä«¡¢¤ªÉÛÃĤ«¤é½Ð¤Æ¤â¤¢¤Þ¤ê´¨¤¤¤È´¶¤¸¤Ê¤«¤Ã¤¿¡×¡Ö1³¬¤ÎÃÈ˼µ¡´ï¤òÉÕ¤±¤ë¤È¤½¤ÎÇ®¤¬2³¬¤Ø¤È¾å¤¬¤ë¤¿¤á¡¢2³¬¤Þ¤ÇÃȤ«¤¯¤Ê¤ë¡ª¡×¤ÈÍÍ¡¹¤Ê´ò¤·¤¤¤ªÀ¼¤ò¤ªÊ¹¤¤·¤Þ¤¹¡£
¤µ¤é¤Ë¥»¥ë¥í¡¼¥¹¥Õ¥¡¥¤¥Ð¡¼¤ÎºàÎÁ¤Ç¤¢¤ë¸Å¿·Ê¹»æ(¥Ñ¥ë¥×ÁǺà)¤ËÄ´¼¾Àǽ¤¬¤¢¤ë¤¿¤á¡¢Í¾Ê¬¤Ê¼¾µ¤¤òµÛ¼ý¤·¤ª²È¤Î³°¤ØÇӽС£¥»¥ë¥í¡¼¥¹¥Õ¥¡¥¤¥Ð¡¼¤ÈÀèÄø¤´¾Ò²ð¤·¤¿Ìµ¹¤¤Î¥Õ¥í¡¼¥ê¥ó¥°ºà¤ÎW¤ÎÄ´¼¾Àǽ¤Ç¼¾ÅÙ¤ò¥³¥ó¥È¥í¡¼¥ë¤·¤Æ¤¯¤ì¤ë¤¿¤á¡¢ÆÃ¤Ë²Æ¤Î¤¦¤À¤ë¤è¤¦¤Ê½ë¤µ¤ËÂФ·È´·²¤Î¸ú²Ì¤òȯ´ø¤·¤Þ¤¹¡£
¤ª²È¤ÎÃæ¤Î²÷Ŭ¤µ¤äÊë¤é¤·¤ä¤¹¤µ¡¢À衹¤Î¥é¥ó¥Ë¥ó¥°¥³¥¹¥È¤ò¹Íθ¤·¡¢Åö¼Ò¤¬¥ª¥¹¥¹¥á¤¹¤ë¥»¥ë¥í¡¼¥¹¥Õ¥¡¥¤¥Ð¡¼ÃÇÇ®ºà¤òºÎÍѤµ¤ì¤Þ¤·¤¿¡£
³°´Ñ
³°´Ñ¤ËÁª¤Ð¤ì¤¿¤Î¤Ï¡¢É÷¹ç¤¤¤¬°Û¤Ê¤ëÀФòÁȤ߹ç¤ï¤»¤¿¤è¤¦¤ÊÀÐÀѤßÉ÷¤Î¥Ç¥¶¥¤¥óÌÏÍÍ¡£¥«¥é¡¼¤Ï¥Û¥ï¥¤¥È¡£¤µ¤é¤ËÁ륵¥Ã¥·¤â¥Û¥ï¥¤¥È¤ËÅý°ì¤·¥·¥ó¥×¥ë¤Ë¤Þ¤È¤á¡¢Æ±¤¸¥Û¥ï¥¤¥È¤Ç¤âÁǺശ¤Î°ã¤¤¤Ç±ü¹Ô¤äÌ£¤¬´¶¤¸¤é¤ì¤Þ¤¹¡£
¤Þ¤¿¡¢¥Û¥ï¥¤¥È¤Ï˰¤¤Î¤³¤Ê¤¤¿Íµ¤¤Î¥«¥é¡¼¤Ç¡¢¼þ°Ï¤Î·Ê´Ñ¤ò¼ÙË⤻¤º Èþ¤·¤¯ÆëÀ÷¤ß¤Þ¤¹¡£
¤µ¤é¤ËÀĶõ¤Ë¤È¤Æ¤â±Ç¤¨¡¢À¶·é´¶¡¢¾åÉʤµ¤È¡¢Á֤䤫¤Ê°õ¾Ý¤â¡£
¸¼´Ø¥É¥¢¤ÏÌÚÌÜÊÁ¤Î¥Ê¥Á¥å¥é¥ë¥«¥é¡¼¡£¥Õ¥í¡¼¥ê¥ó¥°ºà¤È¿§¤ò¹ç¤ï¤»¤¿¥É¥¢¤Ë¤¹¤ë¤³¤È¤ÇÆâÁõ¥Ç¥¶¥¤¥ó¤È¥¤¥á¡¼¥¸¤òÅý°ì¤µ¤ì¤Æ¤¤¤Þ¤¹¡£¤Þ¤¿¸¼´Ø¥Ý¡¼¥Á¤Î¾²¥¿¥¤¥ë¤Ï¥Ö¥é¥Ã¥¯¤Ë¤·¡¢¥¢¥¯¥»¥ó¥È¤ò¥×¥é¥¹¤µ¤ì¤Þ¤·¤¿¡£
¢¨»ÈÍѤµ¤ì¤ë³°´Ñ¤ÎÊɤǤ¹¡£

¢¨³°´Ñ¤Î¥¤¥á¡¼¥¸¥Ñ¡¼¥¹¤Ç¤¹¡£
![]() |
| main |ÂçºåÉÜ̧ÌÌ»Ô Y-HOUSE>>